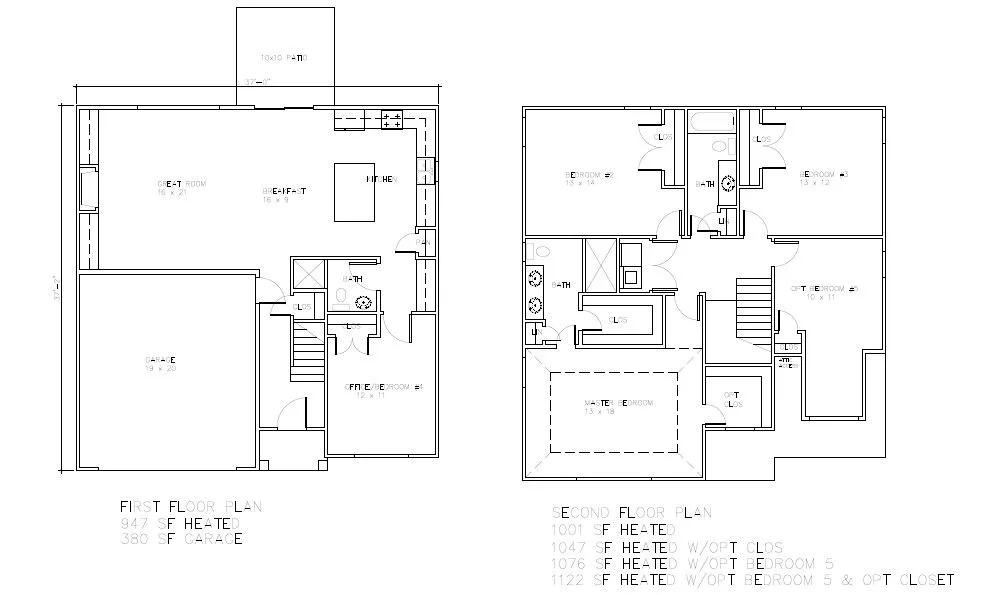
Brantley

Introducing the Brantley Model—a perfect blend of modern design and energy efficiency. Built on a sturdy slab foundation with architectural shingles and durable vinyl siding, this home is designed to last. Inside, you'll find 9' ceilings that create an open and airy feel, complemented by luxury vinyl plank flooring and elegant brushed nickel fixtures throughout. The gourmet kitchen is a chef’s dream, featuring sleek quartz countertops, custom cabinetry, and top-of-the-line stainless steel appliances.

The thoughtfully designed bathrooms are outfitted with stylish tile flooring and premium brushed nickel plumbing fixtures. Outside, enjoy the convenience of a spacious garage, a welcoming concrete porch, and a private patio—perfect for outdoor entertaining. The fully graded yard provides a blank canvas for your landscaping ideas. Rest easy knowing your new home comes with a 1-year builder’s warranty, ensuring peace of mind as you settle in. With additional models available, now is the perfect time to choose the home that best fits your lifestyle!
Previous
Previous

Duncan

Next
Next

Kinsley